"A" Series Floor Plans (1st Floor Owner Suite)

First Floor

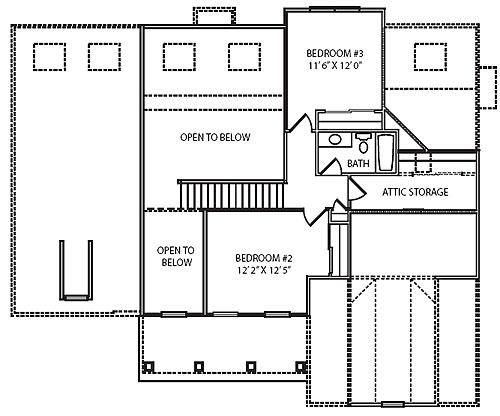
Second Floor
"A" Series Elevations
Call Drea Weeks at 610-721-8679 or
click here to contact us about
***Prices and Features are Subject to Change without Notice***
Community Homepage ·
Community Fact Sheet ·
Pricing
Standard Features ·
Community Plot Plan ·
Map and Directions