Claymont At Collegeville - "N" Series Floor Plans

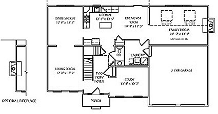
First Floor

Second Floor
"N" Series Elevations
Call or
click here to contact us about Claymont At Collegeville!
***Prices and Features are Subject to Change without Notice***
Community Homepage ·
Community Fact Sheet ·
Pricing
Standard Features ·
Community Plot Plan ·
Map and Directions